Tip nekretnine: Stanovi
- Kategorija: Prodaja
- Šifra nekretnine: 3006
- Cijena: €169,000
- Kvadratura (m2): 65
- Broj soba: 3
- Etaža: 1
- Grijanje: Plinsko centralno
- Lokacija: Osijek
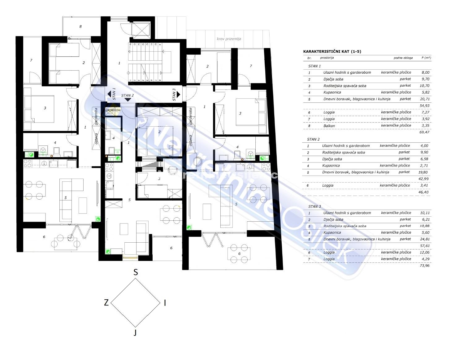
ŠIRI CENTAR GRADA,-POČETAK RETFALE… NOVOGRADNJA, zgrada u izgradnji.
-3-sobni stanovi od 69,47m2 i 73,96m2.
-Zgrada od 5 katova, lift u zgradi,
-osiguran parking, plinsko centralno grijanje, odvojena brojila, svaki stan ima balkon ili lođu.—
—KVALITETNA GRADNJA…..TOP LOKACIJA !!!
-Cijena: od 2.600-2.800 eur/m2 (ovisno o visini akontacije)
-natkrivena ili nenatkrivena parkirna mjesta-
– kupac ne plaća porez na promet nekretnina-
-za više informacija slobodno nas nazovite-
-SVAKA NIŽA CIJENA OBJAVLJENA ZA OVU NEKRETNINU VRIJEDI I KOD NAS –
– šifra nekretnine: 3006-
Pošaljite upit vezano za ovu nekretninu





