Tip nekretnine: Stanovi
- Kategorija: Prodaja
- Šifra nekretnine: 3139
- Cijena: €300,000
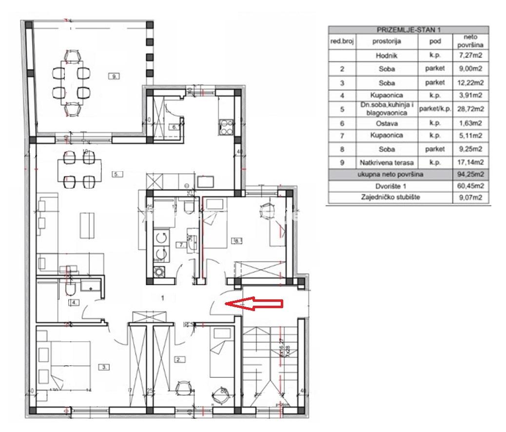
- Kvadratura (m2): 94,25
- Površina okućnice (m2): 60,45
- Broj soba: 4
- Etaža: Prizemlje
- Grijanje: Plinsko centralno
- Lokacija: Osijek
NOVOGRADNJA u izgradnji na Jugu 2…4-sobni stan u prizemlju od 94.25m2 sa vrtom od 60.45m2.
-Sastoji se od; hodnika, dnevni boravak s kuhinjom i blagovaonicom, 3 spavaće sobe, 2 kupaonice, ostava, natkrivena terasa.
-Detalji:
-Plinsko centralno/podno grijanje.
-Klimatizirano.
-Troslojna PVC stolarija s aluminijskim roletama s ispunom.
-Stiropor fasada debljine 15cm.
-Parking u cijeni stana.
-Zgrada smještena u blizini svih sadržaja.
—PRILIKA ZA OBITELJI SA DJECOM !
-planirani rok završetka: kraj 2026.godine-
-Moguća korekcija cijene ovisno o visini kapare-
-SVAKA NIŽA CIJENA OBJAVLJENA ZA OVU NEKRETNINU VRIJEDI I KOD NAS-
-šifra nekretnine: 3139-
Pošaljite upit vezano za ovu nekretninu







